Banery

Aktualności z maja 2022 roku

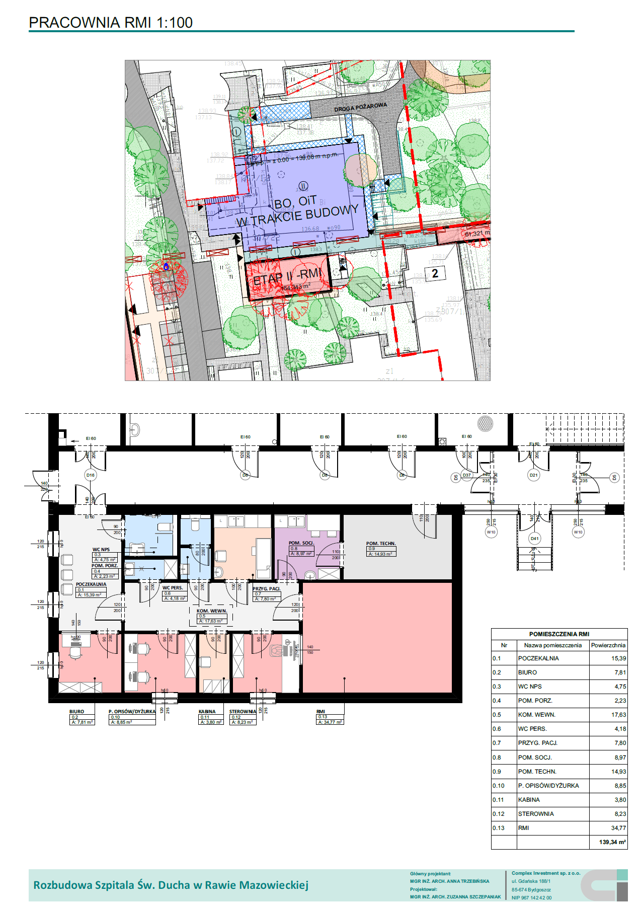
Decyzja o rozpoczęciu budowy pracowni rezonansu magnetycznego

Na wczorajszym posiedzeniu Zarząd Powiatu Rawskiego podjął decyzję o rozpoczęciu budowy budynku, w którym będzie mieściła się pracownia rezonansu magnetycznego.

Środki finansowe będą pochodzić w części z ugody ze Spółką Szpitale Powiatowe w Łasku (dawniej Centrum Dializa z Sosnowca), w ramach której pozyskano 4 mln zł (po 2 mln zł Powiat i SPZOZ).

  • Pracownia  RMI - rzut
  • Pracownia RMI - widok

Metryka

  • Autor Tomasz Góraj
  • Data 2022-05-18

Banery